BUNEK NR 1 i 4 SPRZEDANY. W SPRZEDAŻY BUDYNEK NR 2, 3.
Doskonała lokalizacja
Domy przy Granicznej powstały w bliskim sąsiedztwie urokliwego osiedla domów jednorodzinnych i zabudowy szeregowej, tuż przy ulicy Granicznej, Tylko 5 minut samochodem od centrum Biłgoraja, to miejsce łączące wygodę miasta z urokiem spokojnej okolicy.
Wyjątkowe domy w zabudowie bliźniaczej
Nasza inwestycja składa się na 4 nowoczesnych budynków jednorodzinnych o powierzchni użytkowej wynoszącej 143 m2. To przestrzenie stworzone z myślą o Twoim komforcie i funkcjonalności.
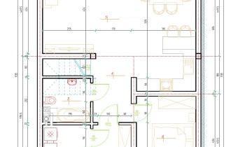
Przestrzeń parteru
Na parterze znajdziesz przestronny salon z miejscem na aneks kuchenny i jadalnię oraz z wyjściem na taras i podwórze. Dodatkowo, przewidzieliśmy miejsce na gabinet, pokój zabaw dla dzieci lub sypialnię - wybór należy do Ciebie. Wiatrołap z miejscem na szafę w zabudowie, korytarz, pomieszczenie gospodarcze z miejscem na gazowy piec C.O. i łazienka to tylko niektóre z udogodnień.
Strefa na poddaszu
Poddasze to strefa relaksu i snu. Znajdziesz tam 3 przestronne sypialnie, garderobę oraz obszerną łazienkę. Wygodny korytarz pozwoli Ci swobodnie poruszać się między pomieszczeniami.
Standard na jaki zasługujesz
Domy przy Granicznej to gwarancja jakości i komfortu. Zamontowaliśmy stolarkę okienną z pakietem 3 szybowym, ociepliliśmy elewację styropianem, a następnie pokryliśmy ją tynkiem szlachetnym. Parapety zewnętrzne wykonane z trwałej blachy powlekanej. Drzwi wejściowe są solidne i bezpieczne. Całość dachu pokryliśmy blachą w rąbek, wykonując profesjonalne obróbki blacharskie z rynnami.
Twój ogród, Twoja przestrzeń
Do każdego domu przynależy ogrodzona działka - ogrodzenie w formie systemowych paneli metalowych. Podjazd dla samochodów i opaska z kostki wokół domu to dodatkowe udogodnienia. Teren jest gotowy pod założenie trawnika i urządzenie ogrodu.
Media gotowe do użycia
Media - instalacja kanalizacji wewnętrznej rozprowadzona jest na parterze budynku, a przyłącza wody, gazu i elektryczne znajdują się w budynku. Dodatkowo, zapewniamy przyłącze domofonu i zasilania automatyki bramy.
Stan Prawny
Nieruchomość jest wolna od obciążeń, a w momencie sprzedaży założona zostanie oddzielna księga wieczysta. Nasza oferta pochodzi z rynku pierwotnego, więc nie płacisz 2% podatku od czynności cywilno-prawnych.
Nie czekaj! Twoje nowe życie zaczyna się tutaj, w Domach przy Granicznej. Skontaktuj się z nami już teraz 606 639 596 i przekonaj się, że to jest to, czego szukasz! ????
| Nr projektowy | Powierzchnia użytkowa m² | Powierzchnia działki | Cena | Status |
| 1 | 143 | 442 m² | - | SPRZEDANY |
| 2 | 143 | 373 m² | 419000 zł | |
| 3 | 143 | 374 m² | 419000 zł | |
| 4 | 143 | 375 m² | - | SPRZEDANY |
2 nowoczesne budynki jednorodzinne o powierzchni użytkowej 143 m2 w zabudowie bliźniaczej składające się z:
PARTER
- przestronny salon z aneksem kuchennym i jadalnią z wyjściem na taras
- pomieszczenie na gabinet, pokój zabaw dla dzieci lub sypialnię
- wiatrołap z miejscem na szafę w zabudowie
- korytarz
- pomieszczenie gospodarcze z miejscem na gazowy piec C.O.
- łazienka
PODDASZE
- 3 przestronne sypialnie
- garderoba
- obszerna łazienka
- korytarz
Opis oferty zawarty na stronie internetowej sporządzany jest na podstawie oględzin nieruchomości oraz informacji uzyskanych od właściciela, może podlegać aktualizacji i nie stanowi oferty określonej w art. 66 i następnych K.C.



